EN

Tsuruta Architects: 家——承载回忆之地

建筑 / 1 May 2018

NLA一年一度的“住宅改造”比赛重在奖励和推广伦敦最具创造性和设计感的住宅改造项目。该比赛得到了知名建筑设计杂志Dezeen、英国皇家建筑师学会和著名家居设计公司Clippings的支持。竞赛展示过去两年在伦敦城区完成的项目,寻求能够为伦敦人提供更好居住空间的卓越创新和成本效益的设计。



来自Tsuruta Architects的住宅改造项目聚焦于唤醒与对家的记忆,并延续房子里未来的故事,以便过去和现在可以在周围的环境中共存并创造新的家园。



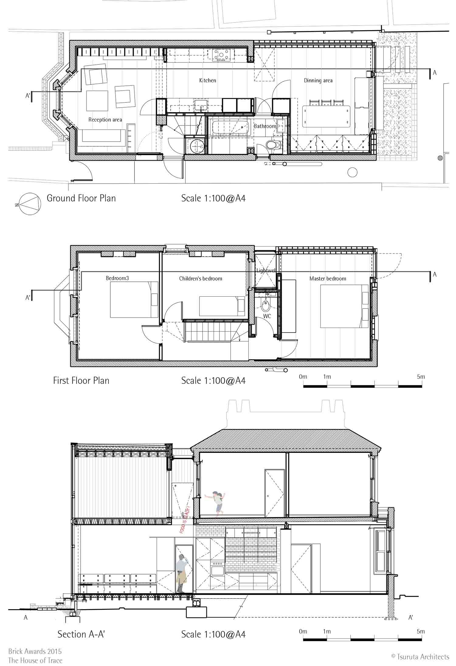
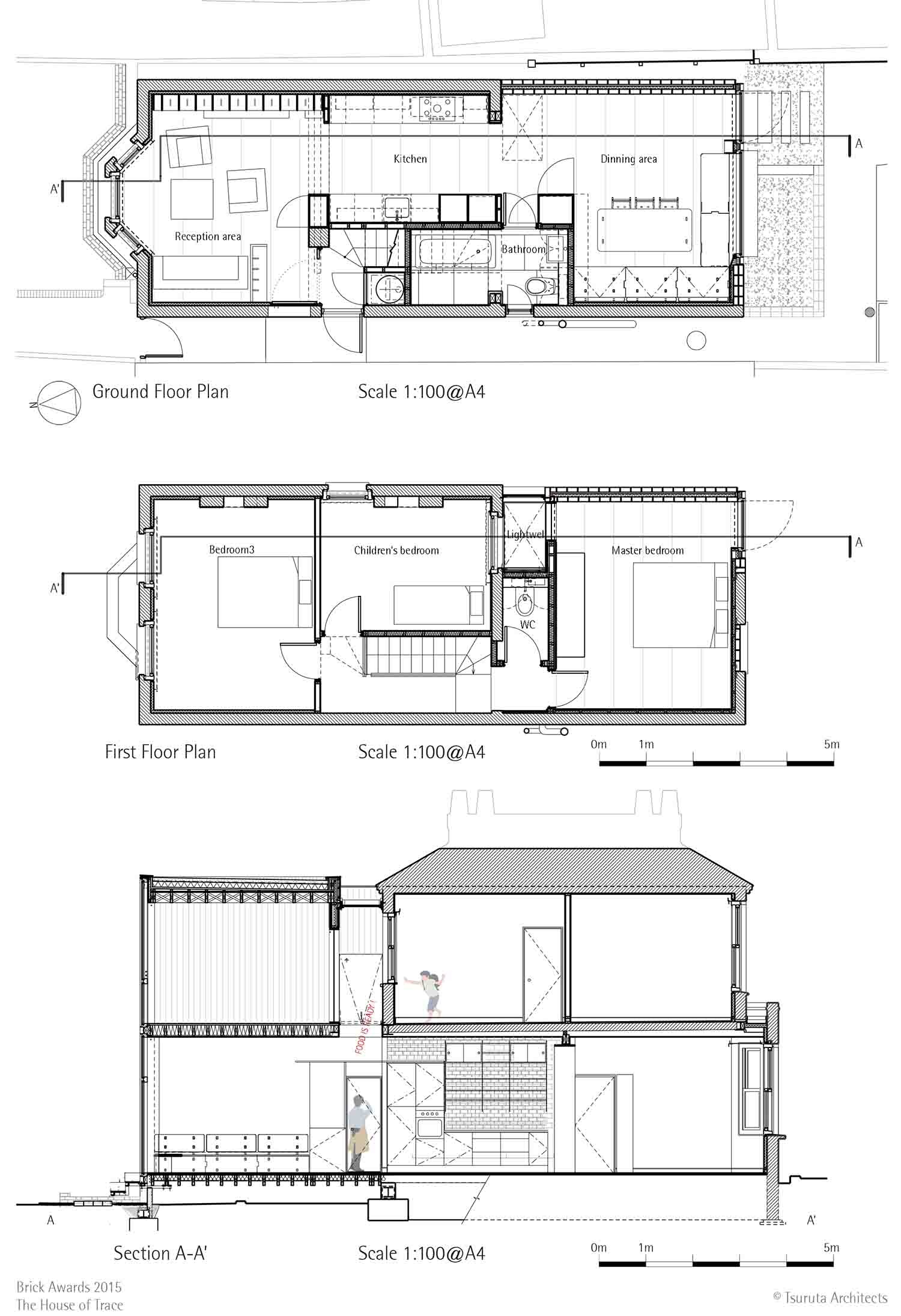
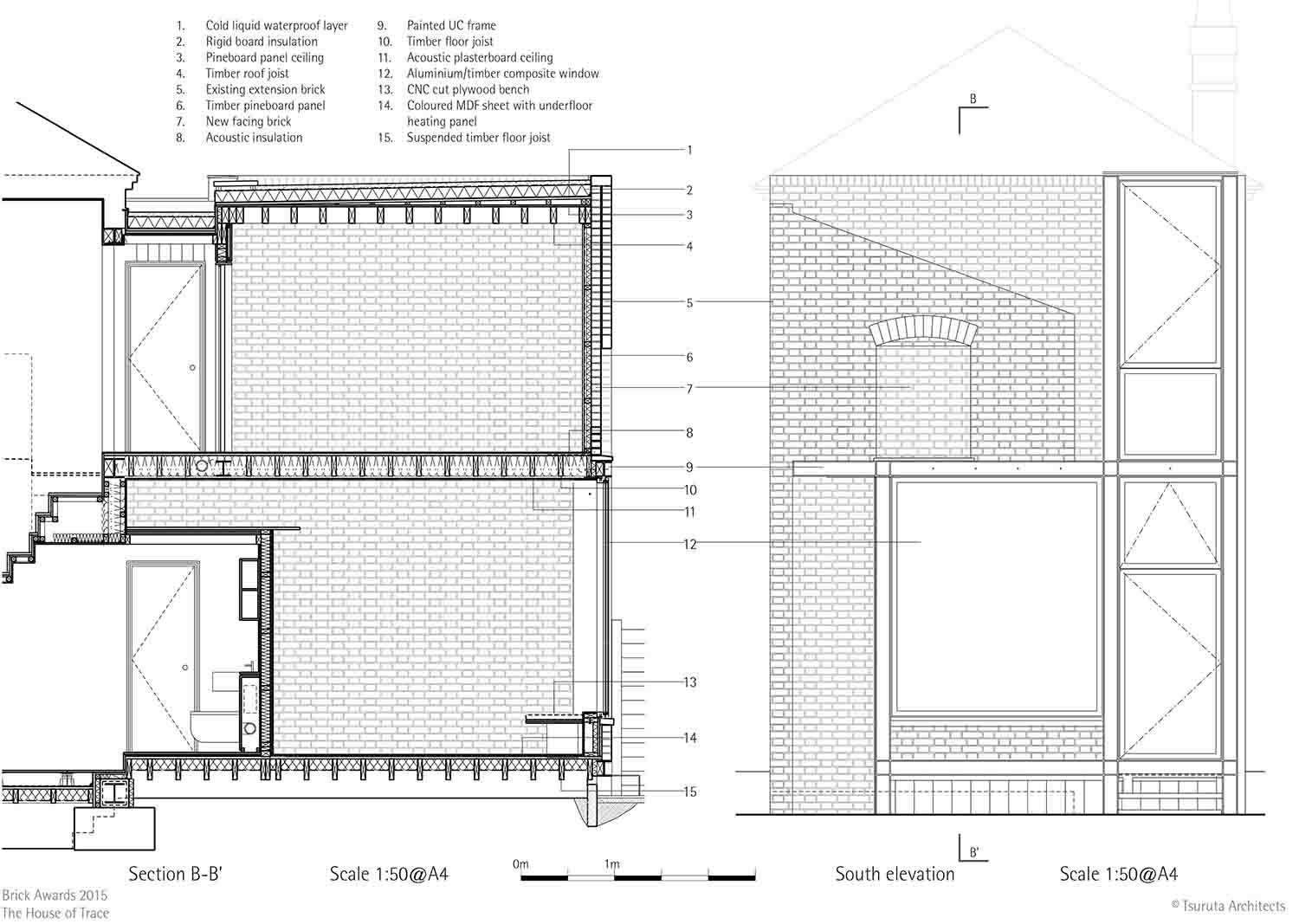
设计师意图让房屋保持着随处充满了日常生活记忆的感觉,在拆除重构房屋时还保留了部分原有模样。从房屋后面的花园可以看到一个经典的屋顶轮廓,结合新建的墙体形成一种附有历史感的剪影。



其中有一面墙体已经向邻舍倾斜了一个砖位,导致墙体出现了一道道裂缝,现在墙体经过修复并保留在了走廊内。



新墙体在房间内随处可见,裸露的是石膏面装饰卧室墙面。定制的铜配件会随着时间缓慢变色。生活的痕迹将逐渐出现在这个空间里,记忆和故事也会随之留在每个角落。



为了增加房屋的层次感,在新建筑和原始楼梯之间增加了一个两层楼高的天井,每天阳光透过窗户进入到一楼室内。天井的独特设计连接了餐厅和二楼主卧和儿童房,主卧和儿童房各有一扇面朝天井的窗户并且相错落开,让父母和孩子既能感受相互的存在到也具有一定的隐私空间。甚至可以想象出母亲在楼下喊一声:“开饭了!”,便可以通知到在儿童房中的孩子下楼就餐。



整个建筑和部件都是三维细节建模,其中一些部件包括主楼梯和家具,进一步细分为CNC加工,最终可以作为扁平包装带到现场。这样不仅可以节约大量时间,节约成本,并且在这个过程中减少了图纸上和现场施工的差距。每一个CNC的编号都将会被追踪,以确保质量。


图片来源: Tsuruta Architects

54

联系我们获得更多信息

您可能感兴趣